WONINGEN ZOEKEN
- Appartement
- Woningtype
- 5
- Slaapkamers
- 3
- Badkamers
- 154 m²
- Area Size
- m²
- Perceel m²
Beschrijving van de woning
Ref: DP-18-9090
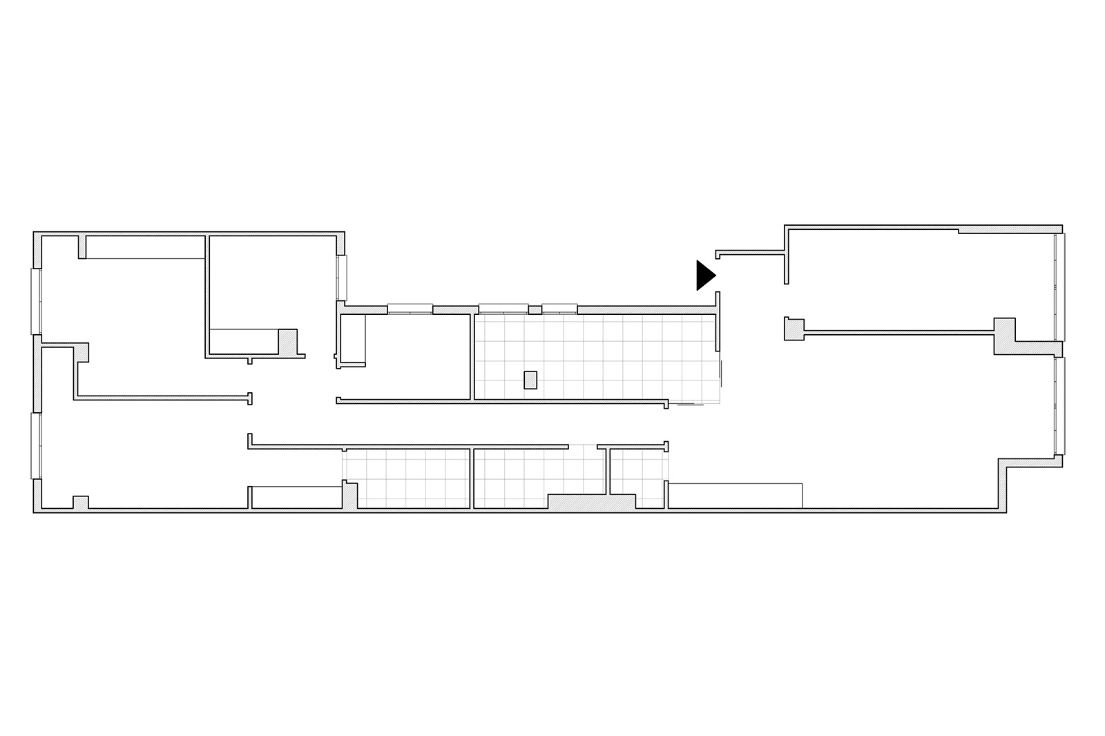
Gelegen in de wijk Arrancapins, vlak voor het station AVE Joaquín Sorolla, ligt dit appartement van 140 m² woonoppervlak volgens het kadaster. De woning is gelegen op de vierde verdieping van een gebouw uit 1979, uitgerust met een lift en met een gang die is aangepast voor mensen met beperkte mobiliteit.
De woning is gelegen in een rustige en vertrouwde omgeving, met een grote verscheidenheid aan diensten en tegenover de toekomstige tweede fase van het Central Park. Het geniet ook van de nabijheid van het metrostation Jesús, dat op slechts een paar minuten afstand ligt, en van verschillende buslijnen die het gebied verbinden met de rest van de stad. Het appartement heeft de afgelopen jaren verschillende verbeteringen ondergaan en valt op door de praktische indeling, waarbij duidelijk onderscheid wordt gemaakt tussen dag- en nachtgedeelte. Het heeft dubbele beglazing, een gelamineerde parketvloer en gladde muren.
De woning verwelkomt ons met een ruime woon-eetkamer met aangenaam en vrij uitzicht, verbonden met een moderne keuken via mooie glazen schuifdeuren. Vanuit de woonkamer is er ook toegang tot een klein gastentoilet en een grote kamer, die momenteel wordt gebruikt als kantoor. Via de gang hebben we toegang tot het nachtgedeelte, bestaande uit een complete badkamer, een wasruimte, een eenpersoonsslaapkamer en twee tweepersoonsslaapkamers, waarvan een met en-suite badkamer. Er is ook de mogelijkheid om een berging en een parkeerplaats in hetzelfde gebouw te kopen voor een extra 30.000€.
Als je op zoek bent naar een appartement in Arrancapins, biedt Makelaar Valencia je de mogelijkheid om kennis te maken met een woning die klaar is om in te trekken en ideaal is voor grote gezinnen, gelegen op slechts een paar minuten van het centrum van Valencia.
Makelaar Valencia is gecertificeerd makelaar, meer info via deze link. We hebben al veel klanten door de jaren heen in Valencia Stad en omgeving mogen helpen, check hier onze recensies.
Kenmerken
-
Ref: DP-18-9090
-
Woningtype: Appartement
-
Prijs: €530.000
-
Bebouwd: 154 m²
-
Slaapkamers: 5
-
Badkamers: 3
Locatie van de woning (bij benadering)
De locatie op de kaart is alleen bedoeld ter indicatie en geeft geen exacte locatie aan. Op de kaart zie je de dichtstbijzijnde plaats waar de woning zich bevindt. Voor meer informatie kun je contact opnemen via het contactformulier.
Vergelijkbare woningen
Renovatie appartement in het oude centrum van Valencia
DP-18-1197 el Carme, Ciutat Vella, València- Slaapkamers: 5
- Badkamers: 3
- 189 m²
- Appartement
Appartement te koop in Valencia
DP-18-0545 Valencia, Valencia- Slaapkamers: 4
- Badkamers: 2
- 156 m²
- Appartement
Vergelijkbare woningen
Renovatie appartement in het oude centrum van Valencia
DP-18-1197 el Carme, Ciutat Vella, València- Slaapkamers: 5
- Badkamers: 3
- 189 m²
- Appartement
Appartement te koop in Valencia
DP-18-0545 Valencia, Valencia- Slaapkamers: 4
- Badkamers: 2
- 156 m²
- Appartement
Renovatie appartement in het oude centrum van Valencia
DP-18-1197 el Carme, Ciutat Vella, València- Slaapkamers: 5
- Badkamers: 3
- 189 m²
- Appartement
Appartement te koop in Valencia
DP-18-0545 Valencia, Valencia- Slaapkamers: 4
- Badkamers: 2
- 156 m²
- Appartement
Appartement te koop in Valencia
- €850.000
- Slaapkamers: 4
- Badkamers: 2
- 156 m²
- Appartement